529Z Rue Main
Ayer's Cliff, Estrie J0B1C0
| MLS: 16738650
$1,195,000
Description
NEARLY 130 FEET ALONG THE SHORES OF LAKE MASSAWIPPI. This unique residence blends contemporary design with rustic touches, featuring bright and refined living spaces. A high-end kitchen with a central island opens onto a flexible dining and living room. Upstairs, a master suite boasts spectacular views, a walk-in closet, and a relaxation area, plus a second bedroom and an elegant bathroom. Ideal for an owner-occupant or investor, with potential annual income of $38,400. Luxury, nature, and serenity close to all amenities.
Ideal for rentals or as a relaxing cottage retreat. Nestled in an exceptional setting, this exclusive property overlooks majestic Lake Massawippi and offers a breathtaking panorama, a true living work of art that evolves with the seasons. A unique residence, it perfectly embodies the balance between contemporary architecture and rustic elegance, in a refined setting where every space has been carefully considered. Its exceptional sunlight, thanks to its optimal orientation, allows you to enjoy the sun throughout the day.
The main floor reveals spectacular living areas, enhanced by abundant windows that capture natural light and magnify the ever-present view of the lake. The kitchen, worthy of the finest creations, features quality materials, generous surfaces, and an impressive central island with a breakfast nook, creating a gathering place that is both welcoming and sophisticated. The open and bright dining room extends this experience, offering an exceptional natural setting. The living room, both elegant and versatile, invites relaxation in a warm and inviting atmosphere. A powder room with laundry facilities completes this level with discretion and functionality.
Upstairs, a second, intimate living room offers a perfect retreat for enjoying moments of tranquility. The master suite, a true sanctuary, is distinguished by its breathtaking lake views, generous proportions, and meticulously designed walk-in closet. A second, equally inviting bedroom, along with a refined bathroom featuring a separate shower, completes this floor with meticulous attention to detail.
Ideally located close to essential amenities, this exceptional property offers an unparalleled lifestyle where understated luxury, nature, and serenity blend harmoniously.
*Income is variable and not guaranteed.
Inclusions : Furniture, appliances, sold furnished.
Exclusions : The paintings.
Location
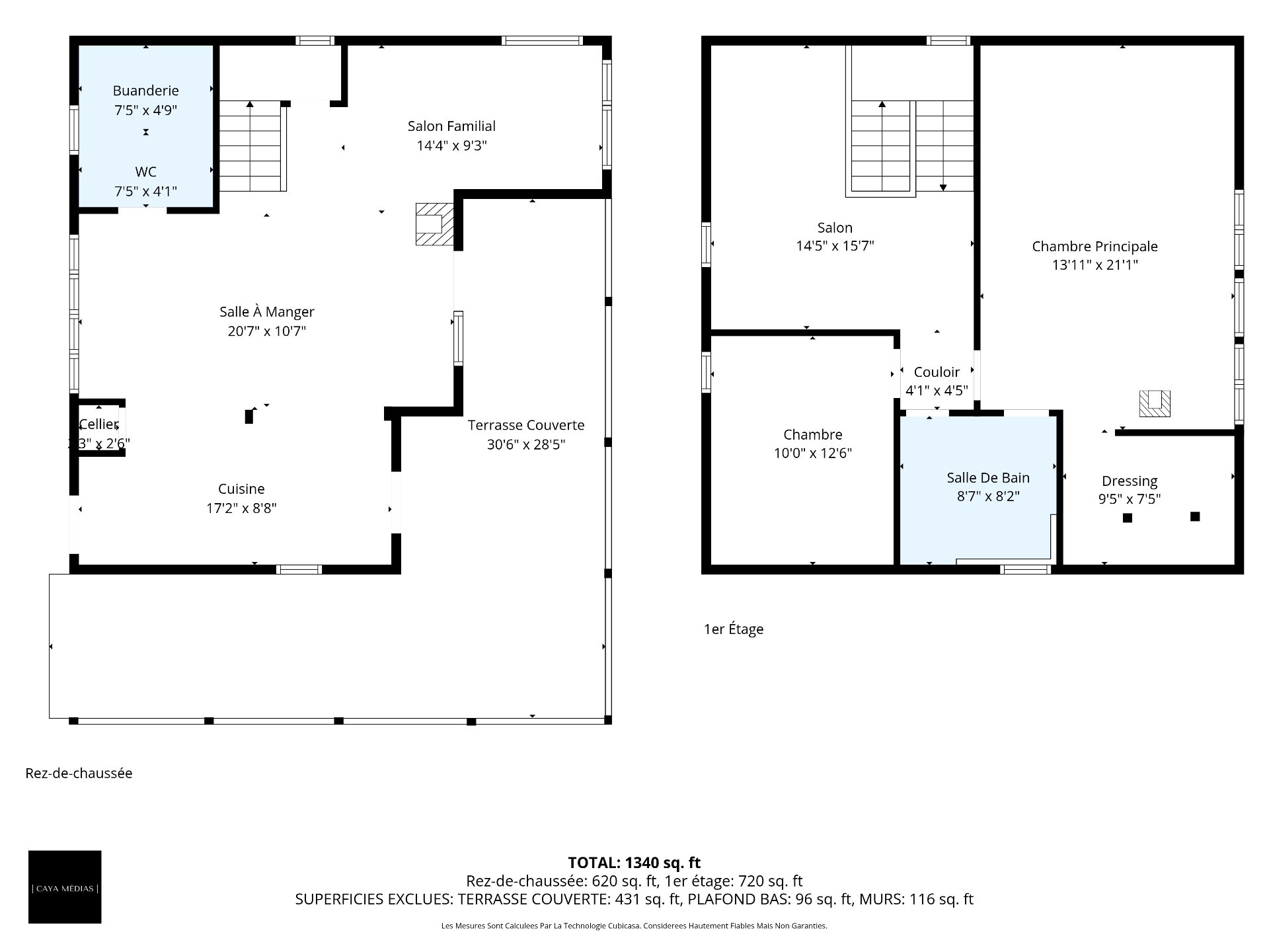
Room Details
| Room | Dimensions | Level | Flooring |
|---|---|---|---|
| Living room | 14.4 x 9.3 P | Ground Floor | Wood |
| Dining room | 20.7 x 10.7 P | Ground Floor | Wood |
| Kitchen | 17.2 x 8.8 P | Ground Floor | Ceramic tiles |
| Washroom | 7.5 x 4.1 P | Ground Floor | Ceramic tiles |
| Laundry room | 7.5 x 4.9 P | Ground Floor | Ceramic tiles |
| Family room | 14.4 x 9.3 P | Ground Floor | Wood |
| Living room | 14.5 x 15.7 P | 2nd Floor | Wood |
| Primary bedroom | 13.11 x 21.1 P | 2nd Floor | Wood |
| Walk-in closet | 9.5 x 7.5 P | 2nd Floor | Wood |
| Bathroom | 8.7 x 8.2 P | 2nd Floor | Ceramic tiles |
| Bedroom | 10.0 x 12.6 P | 2nd Floor | Wood |
Characteristics
| Roofing | Asphalt shingles |
|---|---|
| Proximity | Bicycle path, Daycare centre, Elementary school, High school, Hospital, Park - green area, Public transport |
| Window type | Crank handle |
| Heating energy | Electricity |
| Topography | Flat, Sloped |
| Hearth stove | Gaz fireplace |
| Landscaping | Landscape |
| Sewage system | Municipal sewer, Sealed septic tank |
| Water supply | Municipality |
| Basement | No basement |
| Driveway | Not Paved |
| Parking | Outdoor |
| Windows | PVC |
| Zoning | Residential, Vacationing area |
| Bathroom / Washroom | Seperate shower |
| Heating system | Space heating baseboards |
| Equipment available | Ventilation system, Wall-mounted heat pump |
| Siding | Vinyl |
| Rental appliances | Water heater |
| Distinctive features | Waterfront |
| Foundation | Wood |